Сочи
Важно!

В других городах официальных офисов компании ВИРМАК нет!

(есть случаи работы под нашим брендом непорядочных конкурентов)

заказать звонок
Сочи
Важно!

В других городах официальных офисов компании ВИРМАК нет!

(есть случаи работы под нашим брендом непорядочных конкурентов)

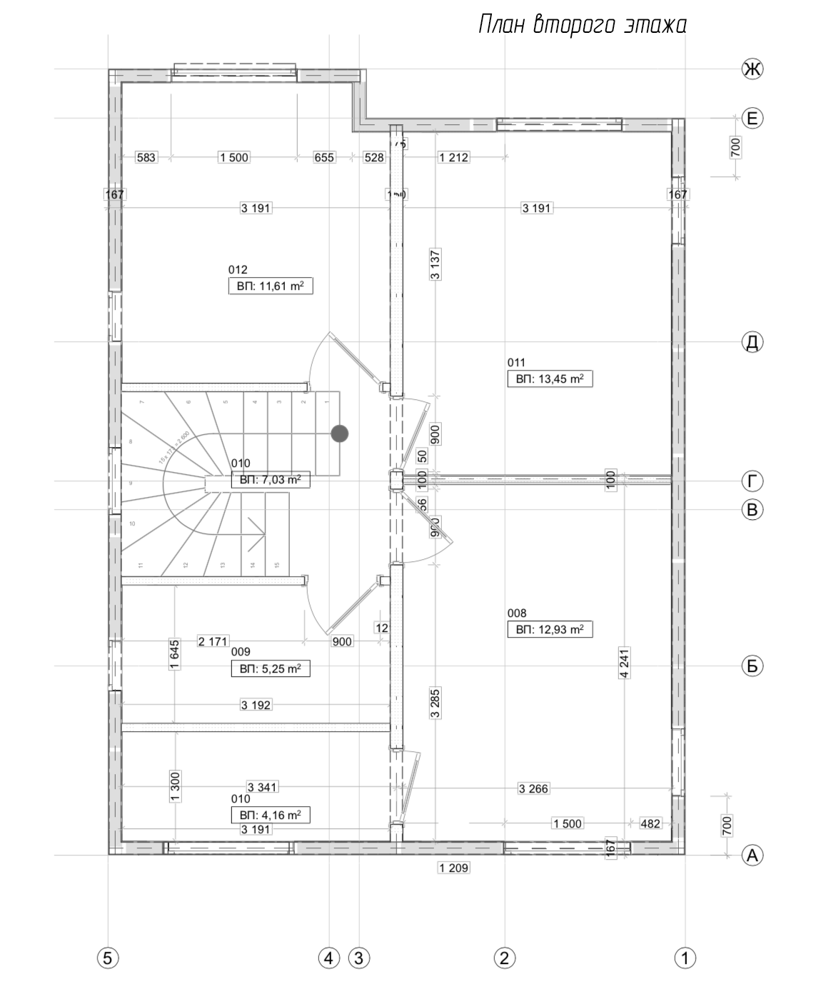
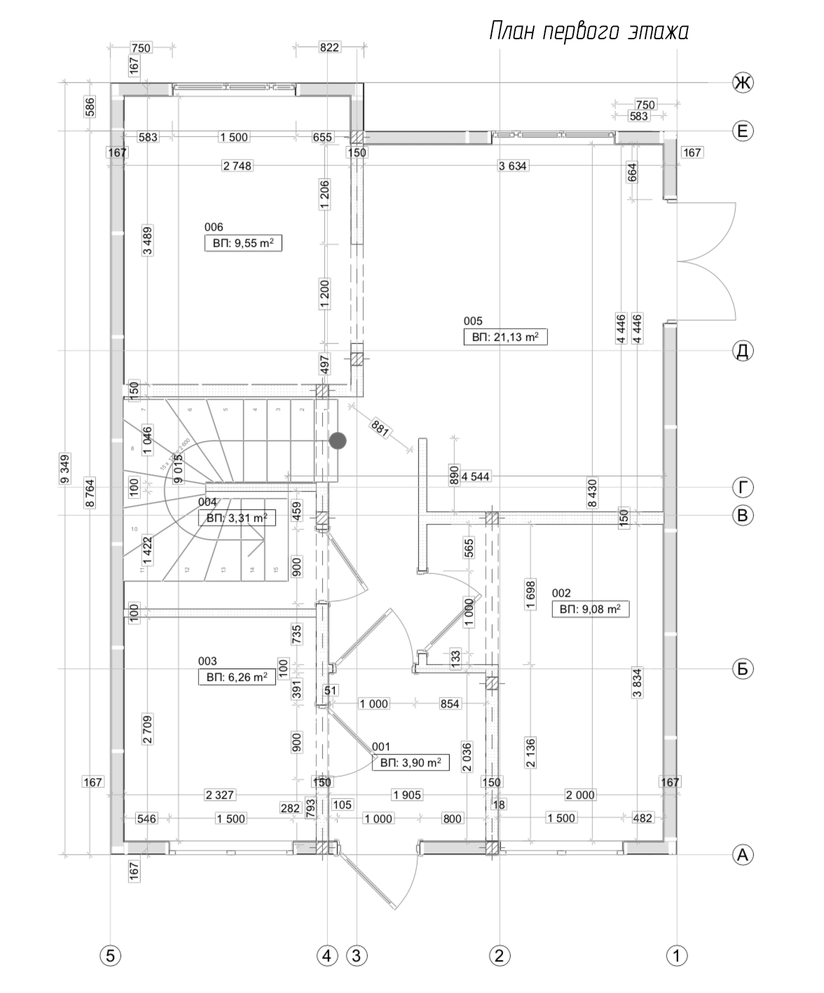
Двухэтажный жилой дом 124 м2, Московская область, Подольский район, с. Покров


К-2-124

Индивидуальный жилой дом

Общая площадь дома:  124 м2

Площадь застройки: 62 м2

Этажность: 2 этажа

Общая площадь помещений: 107,66 м2

Строительный объем: 414,63 м3

Тип фундамента: винтовые сваи

Тип панелей: СИП панели из ЦСП, утеплитель пенополистирол


Отзыв заказчика

Сегодня мы закончили первый этап нашего строительства - поставили теплый контур дома и проложили все инженерные коммуникации! Хочу поблагодарить весь коллектив компании "ВИРМАК", которые помогли нам наконец-то реализовать нашу давнюю мечту - построить собственный дом по нашему собственному проекту. В процессе работы удивлялась терпению, с которым инженер Иван Михайлович и Директор Иван Николаевич выслушивали наши пожелания, которые не один раз менялись как в процессе работы над проектом, так и в процессе его реализации. Очень приятно было также работать с молодым архитектором Викторией, которую мы изрядно помучили, но всегда она была вежлива, корректна и готова выполнить любой наш каприз. Все это в полной мере относится ко всем, с кем нам пришлось работать в процессе проектирования и строительства. Особо хочу отметить просто отличную бригаду строителей, с которой нам просто повезло необыкновенно! Ребята просто профессионалы! Нам все соседи, которые наблюдали за нашей стройкой все два месяца, завидовали, как слаженно, четко и профессионально работали строители. Вся стройка заняла 2 месяца, как было определено графиком работ. И, несмотря на погодные условия, которые не всегда были в нашу пользу, все этапы выполнялись в срок, а иногда и раньше срока. Ход работ постоянно контролировали оба Ивана, мы приезжали только по выходным, принимали этапы, обсуждали дальнейший ход работ. Все недочеты тут же исправлялись. Кроме того, мы заключили Дополнительные договоры на прокладку инженерных коммуникаций и электромонтажные работы. в результате теперь у нас в доме есть электричество, вентиляция, водоснабжение и канализация, а также система отопления. Ребята также повесили и подключили все радиаторы отопления, которые мы купили и завезли в дом. С удивительным терпением инженер Иван Михайлович несколько раз менял высоту подвеса радиаторов, т.к. нам не все нравилось. Трубы отопления максимально сделаны незаметными, как мы и хотели изначально. Сегодня мы приняли всю инженерку и остались очень довольны проделанной работой. Особое спасибо хотелось бы сказать электрику Ренату, который в действительности просто мастер на все руки, и очень помог нам и проконсультировал по многим вопросам. Пока законсервировали дальнейшие работы до весны, а потом с удовольствием продолжим дальнейшее сотрудничество с ВИРМАКом и его дружным и профессиональным коллективом по наружной и внутренней отделке нашего дома. Успехов вам, сотрудники ООО "ВИРМАК", много хороших и покладистых, понимающих клиентов, много интересных проектов! Удачи во всех ваших начинаниях! Но не забывайте и об отдыхе, т.к. похоже, что вы все работаете без выходных! Все мы люди, и всем надо отдыхать, а клиенты, думаю, это тоже понимают!

,

Уважаемые заказчики!

Мы с радостью предоставим Вам готовые проекты по лучшим ценам!

С готовым проектом Вы сможете:

подать документы для получения разрешения на строительство.

самостоятельно начать строительство или приобрести
готовый домокомплект

Гарантия:

По нашим проектам мы уже вели строительство, а значит,
значительно снижен риск Вашего самостоятельного строительства.

Самая лучшая цена за проект!!!

Внимание!

Для проектирования и строительства зданий из кирпича, монолита, разных видов блока,
просим Вас посетить наш сайт: 100proekt.ru

Бесплатный расчёт проекта

Прикрепить файл
Файл не выбран
×

Заказать домокомплект

Прикрепить файл
Файл не выбран
×

Заказать обратный звонок

×

Заказать проект

×

Заказать проект

×

РАСЧИТАТЬ СТОИМОСТЬ БДК

×

Рассчитать стоимость панелей

×

Заявка на кредит

×

Заявка на кредит Почта Банк

×

1. Кровля и кровельное покрытие

Кровля может быть построена из бруса 150х50мм или SIP панелей. В качестве кровельного материала можно использовать: металлочерепицу, битумную и керамическую черепицу. Также производим кровельные шовные сэндвич-панели.

2. Двутавровый потолок

Потолок состоит из двутавровых балок 250 мм, а шаг монтажа балок - 600 мм.

3. SIP Стена

Трехслойная внешняя стеновая панель состоит из:

• два листа цементно-стружечной плиты 12 мм с обеих сторон

• внутренний теплоизоляционный слой с толщиной 148 мм двух типов: полистирол ПСБ-25 (плотностью 25 кг/м3) или минеральная вата ISOVER (плотностью 64 кг/м3).

4. Ростверк

Ростверк изготовлен из калиброванного клееного бруса и защищен снаружи цементно-стружечной плитой